Skip to main content

salesforce_west_logo_rgb.png

  • Home
  • Overview
  • Gallery
  • Building Amenities
  • Neighborhood
  • Tenant Handbook
  • Service Requests
  • Contact Us

Tenant Handbook

  • The Building
    • About Salesforce West
    • About Cushman & Wakefield
  • Building Operations
    • Building Hours
    • Deliveries
    • Holidays
    • Keys and Signage
    • Move-in/out Procedures
    • Security Service & Building Access
  • Property Management
    • Accounting
    • Property Management
    • Leasing
  • Emergency Procedures
    • Bomb Threat / Suspicious Device
    • Civil Disturbance
    • Classifications of Fire and Methods of Extinguishing
    • Duties of the Fire Safety Organization
    • Earthquakes
    • Emergency Contacts
    • Evacuation / Relocation
    • Fire Alarm and Public Address System
    • Medical Emergency
    • Purpose of Emergency Plan and Building System
    • Toxic Hazards
  • Building Services
    • Elevators and Stairwells
    • HVAC
    • Janitorial
    • Loading Dock
    • Mail Services
    • Telephone and Electrical Closets
  • Sustainability
    • Bicycle Parking
    • Energy Star
    • Green Building Features
    • LEED
    • Recycling & Composting Program
  • Policies & Procedures
    • Building Rules & Regulations
    • Insurance Requirements
    • Moving Rules & Regulations
    • Smoking

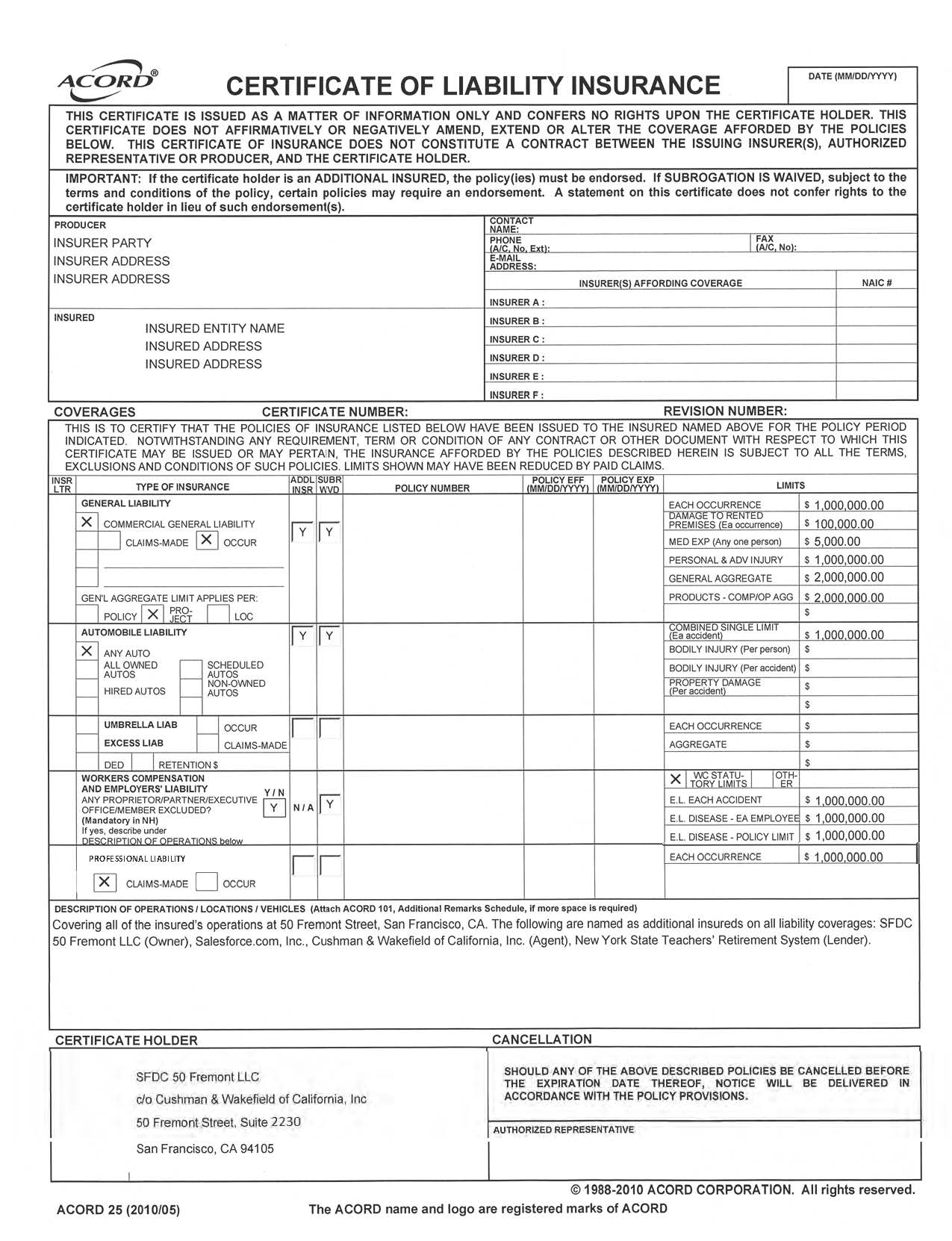
Insurance Requirements

A current Certificate of Insurance from the moving or delivery company must be on file in the Property Management Office prior to any moving activity. Any vendor arriving to perform work at Salesforce West without Certificate of Insurance in Property Management Office will not be allowed access to premises.

Click here for the COI Requirements

Sample Template of COI

350 Mission COI Requirements

 

50 Fremont Street, San Francisco, CA 94105

cushman-wakefield-logo.pngLEED-Platinum.pngenergy-star.png